中古マンション サンワプラザ須磨山の手
所在地
神戸市須磨区車字獅堀
1,290万円
66.60m²
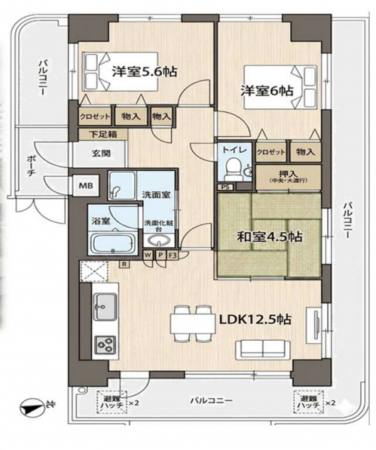
3LDK
2026年4月内装フルリノベーション物件です!
(システムキッチン・洗面化粧台・トイレ・浴室・クローゼット・各部屋扉新調・襖貼り替え・畳表替え・クロス・フローリング貼り替え)
神戸市営地下鉄 妙法寺駅徒歩19分
2面以上バルコニーで採光良好
セブンイレブン神戸須磨車店・・・約500m 徒歩7分
マルアイ妙法寺店・・・ 約1250m 徒歩16分
北須磨病院・・・ 約1460m 徒歩19分
神戸東落合郵便局・・・ 約1600m 徒歩25分
月々の支払例
【※ボーナス払い無し】
【※ボーナス払い無し】
※三菱UFJ銀行/頭金0円、返済期間35年、金利0.945%変動金利変動(2026年05月)の場合
※金利は毎月見直されます。別途、融資手数料、その他諸費用がかかります。
※審査により金利は変わる可能性があります。
物件概要
- 交通
-
神戸市営地下鉄西神山手線 妙法寺駅 まで 徒歩19分
- 専有面積
- 壁芯 66.60㎡
- バルコニー
-
面積不明 (南東側)
面積不明 - 所在階/階数
- 2階/7階
- 築年数
-
1998年
(平成10)
10月
築27年 - 建ぺい率
- 容積率
- 土地権利
- 所有権
- 構造および階数
- RC(鉄筋コンクリート) 造 地下1階 地上7階建
- 総戸数
- 小学校区
- 若草 ( 830m )
- 中学校区
- 須磨北 ( 930m )
- 地目
- 現況
- 空
- 引渡時期
- 即時
- 駐車場
- 駐車場月額
- 管理形態
- 全部委託
- 管理方式
- 管理人日勤
- 管理会社
- 管理費
- 9,260円
- 修繕積立費
- 10,660円
- 上水道
- 公共
- 下水道
- 公共
- ガス
- 都市ガス
- 都市計画
- 用途地域
- 1種中高
- 設備・条件
- システムキッチン、シャンプードレッサー
- 備考
- 取引態様
- 仲介


