新築一戸建て 神戸市須磨区関守町2丁目3号地
所在地
神戸市須磨区関守町2丁目3号地
4,430万円
27.47坪
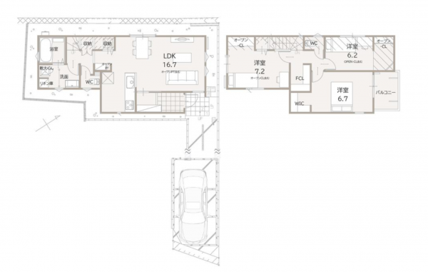
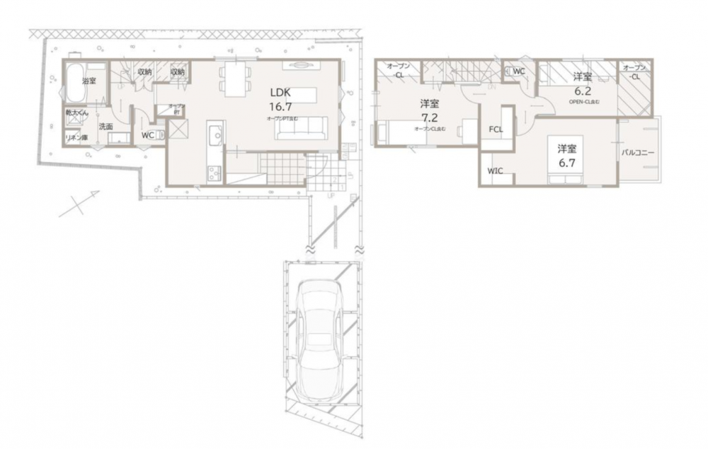
3LDK
駅近物件(山陽線 須磨駅/徒歩6分・山陽電鉄本線 山陽「須磨」駅/徒歩 4 分)
2WAYアクセス可能!
長期優良住宅!
ローソン 神戸須磨寺町四丁目店・・・約300m 徒歩5分
コープこうべ コープミニ須磨寺・・・約400m 徒歩6分
神戸須磨本町郵便局・・・約600m 徒歩8分
神戸信用金庫 須磨支店・・・約550m 徒歩7分
月々の支払例
【※ボーナス払い無し】
【※ボーナス払い無し】
※三菱UFJ銀行/頭金0円、返済期間35年、金利0.945%変動金利変動(2026年04月)の場合
※金利は毎月見直されます。別途、融資手数料、その他諸費用がかかります。
※審査により金利は変わる可能性があります。
物件概要
- 交通
-
山陽線 須磨駅 まで 徒歩6分
- 接道状況
- 南東側 公道4m 間口約3.2m
- 土地面積
- 公簿 113.68㎡ (34.38坪)
- 建物面積
- 90.81㎡ (27.47坪)
- 築年数
- 2025年 (令和7) 12月
- 建ぺい率
- 60%
- 容積率
- 150%
- 土地権利
- 所有権
- 構造および階数
- 木造 地上2階建
- 小学校区
- 西須磨 ( 1200m )
- 中学校区
- 鷹取 ( 2400m )
- 私道負担
- 有 1.52 ㎡
- 地目
- 宅地
- 現況
- 空
- 引渡時期
- 即時
- 駐車場
- 有
- 上水道
- 公共
- 下水道
- 公共
- ガス
- 都市ガス
- 都市計画
- 市街化区域
- 用途地域
- 1種低層
- 設備・条件
- カウンターキッチン、トイレ2箇所
- 備考
- 取引態様
- 仲介


