新築一戸建て 神戸市須磨区寺田町1丁目
所在地
神戸市須磨区寺田町1丁目
5,280万円
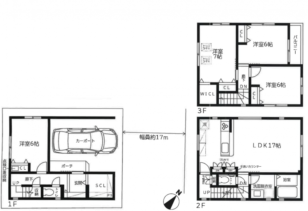
35.48坪
4LDK
駅近物件(山陽線「新長田」駅/徒歩9分)
シューズクローゼット、ウォークインクローゼット付き!
耐震等級「2」、断熱等級「4」を取得!
床暖房、エコジョーズ、ミストカワック付きで充実した設備
ローソン ゴダイ神戸大田町二丁目店・・・ 約260m 徒歩4分
ライフ須磨鷹取店・・・ 約450m 徒歩7分
神戸水笠郵便局・・・ 約260m 徒歩4分
三井住友銀行 板宿支店・・・ 約500m 徒歩7分
兵庫信用金庫 新長田支店・・・ 約400m 徒歩6分
月々の支払例
【※ボーナス払い無し】
【※ボーナス払い無し】
※三菱UFJ銀行/頭金0円、返済期間35年、金利0.945%変動金利変動(2026年04月)の場合
※金利は毎月見直されます。別途、融資手数料、その他諸費用がかかります。
※審査により金利は変わる可能性があります。
物件概要
- 交通
-
山陽線 新長田駅 まで 徒歩9分
- 接道状況
- 公道17m 間口約6.9m
- 土地面積
- 公簿 59.30㎡ (17.93坪)
- 建物面積
- 117.31㎡ (35.48坪)
- 築年数
- 2025年 (令和7) 11月
- 建ぺい率
- 60%
- 容積率
- 200%
- 土地権利
- 所有権
- 構造および階数
- 木造 地上3階建
- 小学校区
- だいち ( 750m )
- 中学校区
- 太田 ( 700m )
- 私道負担
- 無
- 地目
- 宅地
- 現況
- 空
- 引渡時期
- 相談
- 駐車場
- 有
- 上水道
- 公共
- 下水道
- 公共
- ガス
- 都市ガス
- 都市計画
- 市街化区域
- 用途地域
- 1種住居
- 設備・条件
- 床暖房、カウンターキッチン、食器洗浄乾燥機、シャンプードレッサー、浴室乾燥機、モニタ付インターホン、ウォークインクローゼット、トイレ2箇所、エコジョーズ
- 備考
- 取引態様
- 仲介


