中古一戸建て 神戸市須磨区南町2丁目
所在地
神戸市須磨区南町2丁目
550万円
42.84坪
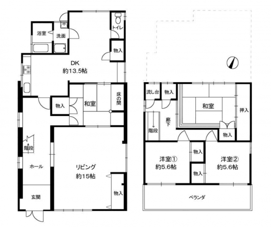
4LDK
駅近物件(JR線 須磨海浜公園駅/徒歩約4分)
敷地約58坪、建物約42坪の広々した敷地です
南向きの広いお庭つき
スーパーや医院、銀行などが近く、便利な立地です
2017年にキッチン・洗面台取り替え一部建具入れ替え済です
ふじわら内科・・・約160m 徒歩2分
ジョイエール月見山・・・約240m 徒歩3分
神戸南町郵便局・・・約240m 徒歩3分
デイリーヤマザキ・・・約320m 徒歩4分
コープこうべ・・・約320m 徒歩4分
須磨区民センター・・・約560m 徒歩7分
月々の支払例
【※ボーナス払い無し】
【※ボーナス払い無し】
※三菱UFJ銀行/頭金0円、返済期間35年、金利0.945%変動金利変動(2026年04月)の場合
※金利は毎月見直されます。別途、融資手数料、その他諸費用がかかります。
※審査により金利は変わる可能性があります。
物件概要
- 交通
-
山陽線 須磨海浜公園駅 まで 徒歩4分
- 接道状況
- 私道2.7m
- 土地面積
- 171.40㎡ (51.84坪)
- 建物面積
- 141.62㎡ (42.84坪)
- 築年数
- 建ぺい率
- 60%
- 容積率
- 200%
- 土地権利
- 旧法賃借
- 構造および階数
- 木造 地上2階建
- 小学校区
- 西須磨 ( 560m )
- 中学校区
- 鷹取 ( 1040m )
- 私道負担
- 有 20.6 ㎡
- 地目
- 宅地
- 現況
- 空
- 引渡時期
- 相談
- 駐車場
- 無
- 上水道
- 公共
- 下水道
- 公共
- ガス
- 都市ガス
- 都市計画
- 市街化区域
- 用途地域
- 1種中高
- 設備・条件
- システムキッチン
- 備考
-
借地料: 6円/月
借地期間: 7年2月
借地期日指定: 2033年6月 - 取引態様
- 仲介


