中古一戸建て 神戸市須磨区若草町1丁目
所在地
神戸市須磨区若草町1丁目
1,580万円
32.05坪
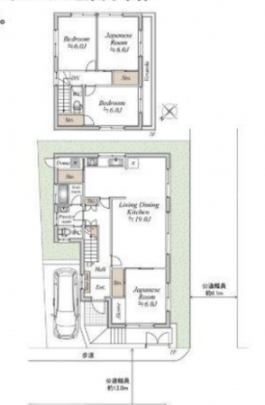
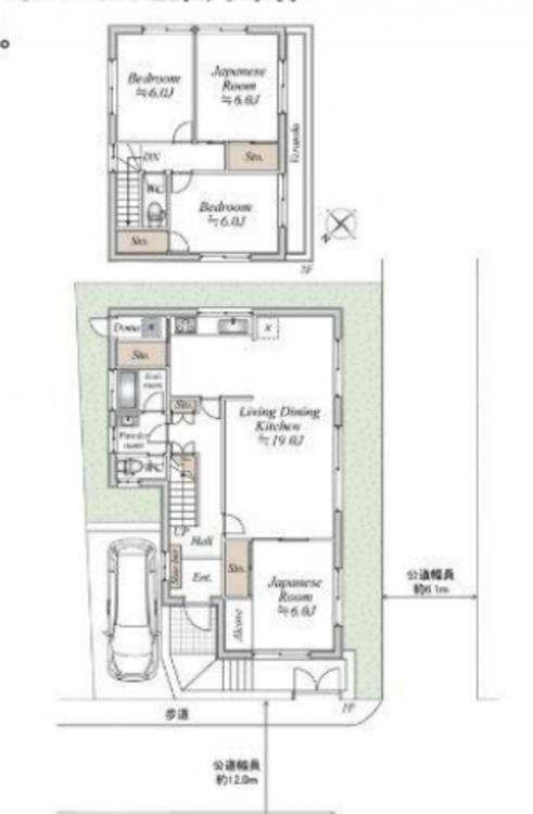
4LDK
角地×日当たり良好!
4LDKで使いやすい間取り
敷地面積約52坪の広々とした敷地
緑豊かな閑静な住宅街のお家です
約19畳の解放感溢れるリビング
前面道路は約12mで駐車もラクラク
全部屋6畳以上でゆったり空間
トイレ2箇所で忙しい朝も安心
若草公園・・・約240m 徒歩3分
セブン-イレブン 神戸須磨車店・・・約640m 徒歩8分
マルアイ 妙法寺店・・・約1500m 徒歩19分
若草南公園・・・約120m 徒歩2分
白川製麺所・・・約650m 徒歩10分
月々の支払例
【※ボーナス払い無し】
【※ボーナス払い無し】
※三菱UFJ銀行/頭金0円、返済期間35年、金利0.945%変動金利変動(2026年04月)の場合
※金利は毎月見直されます。別途、融資手数料、その他諸費用がかかります。
※審査により金利は変わる可能性があります。
物件概要
- 交通
-
神戸市営地下鉄西神山手線 妙法寺駅 バス15分乗車 バス停南公園 まで 徒歩1分
- 接道状況
-
南西側 公道6.1m
北西側 公道12m - 土地面積
- 公簿 173.83㎡ (52.58坪)
- 建物面積
- 105.98㎡ (32.05坪)
- 築年数
-
1979年
(昭和54)
2月
築47年 - 建ぺい率
- 50%
- 容積率
- 100%
- 土地権利
- 所有権
- 構造および階数
- 木造 地上2階建
- 小学校区
- 若草 ( 360m )
- 中学校区
- 須磨北 ( 1040m )
- 私道負担
- 無
- 地目
- 宅地
- 現況
- 空
- 引渡時期
- 相談
- 駐車場
- 有
- 上水道
- 公共
- 下水道
- 公共
- ガス
- 都市ガス
- 都市計画
- 市街化区域
- 用途地域
- 1種低層
- 設備・条件
- 1BOX駐車可、トイレ2箇所
- 備考
- 取引態様
- 仲介


