中古一戸建て 神戸市須磨区天神町4丁目
所在地
神戸市須磨区天神町4丁目
2,280万円
25.12坪
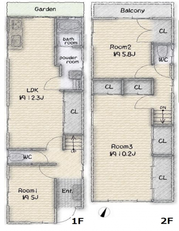
3LDK
リフォーム済み物件です。
(令和7年9月キッチン・クロス・フローリング・トイレ・洗面台新調)
収納豊富なので荷物が多くても問題なし
小学校が近くて(徒歩約4分)通学安心!
お庭で家庭菜園も楽しめます
セブンイレブン神戸須磨行幸町店・・・約320m 徒歩4分
西須磨幼稚園・・・約400m 徒歩5分
須磨幼稚園・・・約560m 徒歩7分
コープ須磨店・・・約720m 徒歩9分
ジョイエール月見山・・・約800m 徒歩10分
月々の支払例
【※ボーナス払い無し】
【※ボーナス払い無し】
※三菱UFJ銀行/頭金0円、返済期間35年、金利0.945%変動金利変動(2026年04月)の場合
※金利は毎月見直されます。別途、融資手数料、その他諸費用がかかります。
※審査により金利は変わる可能性があります。
物件概要
- 交通
-
JR山陽本線 まで 徒歩10分
- 接道状況
- 南側
- 土地面積
- 80.41㎡ (24.32坪)
- 建物面積
- 83.07㎡ (25.12坪)
- 築年数
-
1984年
(昭和59)
2月
築42年 - 建ぺい率
- 60%
- 容積率
- 150%
- 土地権利
- 所有権
- 構造および階数
- 木造
- 小学校区
- 西須磨 ( 320m )
- 中学校区
- 鷹取 ( 2000m )
- 私道負担
- あり 5.25
- 地目
- 現況
- 引渡時期
- 駐車場
- 有
- 上水道
- 公共
- 下水道
- 公共
- ガス
- 都市ガス
- 都市計画
- 用途地域
- 1種低層
- 設備・条件
- システムキッチン、1BOX駐車可
- 備考
- 取引態様
- 仲介


