新築一戸建て 神戸市須磨区白川台5丁目
所在地
神戸市須磨区白川台5丁目
4,880万円
36.94坪
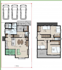
4LDK
太陽光発電+エネファームのW発電で電気代がお得!
耐震等級3 断熱等級5 安心設計!
電動シャッター付きで開け閉めらくらく
床暖房付きで冬もあたたか
コープこうべ コープ白川台・・・約500m 徒歩7分
神戸白川台郵便局・・・約500m 徒歩7分
ローソン 須磨白川台四丁目店・・・約700m 徒歩11分
スーパーマルハチ 落合店・・・約1000m 徒歩13分
月々の支払例
【※ボーナス払い無し】
【※ボーナス払い無し】
※三菱UFJ銀行/頭金0円、返済期間35年、金利0.945%変動金利変動(2026年04月)の場合
※金利は毎月見直されます。別途、融資手数料、その他諸費用がかかります。
※審査により金利は変わる可能性があります。
物件概要
- 交通
-
神戸市営地下鉄西神山手線 名谷駅
- 接道状況
- 土地面積
- 166.73㎡ (50.43坪)
- 建物面積
- 122.13㎡ (36.94坪)
- 築年数
- 2026年 (令和8) 4月
- 建ぺい率
- 50%
- 容積率
- 100%
- 土地権利
- 所有権
- 構造および階数
- 木造 地上2階建
- 小学校区
- 白川 ( 700m )
- 中学校区
- 白川台 ( 150m )
- 私道負担
- 地目
- 宅地
- 現況
- 引渡時期
- 予定
- 駐車場
- 上水道
- 下水道
- ガス
- 都市計画
- 市街化区域
- 用途地域
- 1種低層
- 設備・条件
- 床暖房、システムキッチン、カウンターキッチン、ウォークインクローゼット、駐車場3台分、エコキュート
- 備考
- 取引態様
- 仲介


