中古一戸建て 神戸市須磨区千守町2丁目
所在地
神戸市須磨区千守町2丁目
580万円
15.19坪
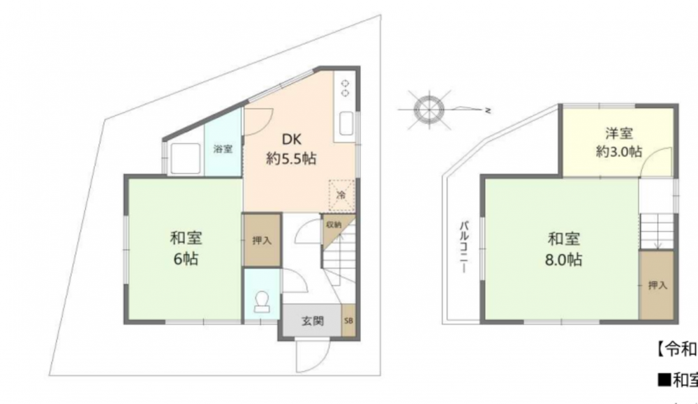
2SDK
■2ウェイアクセス
山陽電鉄「山陽須磨」駅徒歩6分/JR神戸線「須磨」駅徒歩9分
■居住用・収益物件等様々な用途としてご検討下さい
■南・東・西3方角地
■令和7年5月室内リフォーム済
コープこうべ コープミニ須磨寺・・・徒歩4分(260m)
ローソン 神戸須磨寺町四丁目店・・・徒歩2分(150m)
野村海浜病院・・・徒歩17分(1200m)
神戸西須磨郵便局・・・徒歩11分(700m)
月々の支払例
【※ボーナス払い無し】
【※ボーナス払い無し】
※三菱UFJ銀行/頭金0円、返済期間35年、金利0.945%変動金利変動(2026年04月)の場合
※金利は毎月見直されます。別途、融資手数料、その他諸費用がかかります。
※審査により金利は変わる可能性があります。
物件概要
- 交通
-
山陽電鉄本線 山陽須磨駅 まで 徒歩6分
- 接道状況
-
東側 私道2.1m
南西側 私道2.1m - 土地面積
- 公簿 65.02㎡ (19.66坪)
- 建物面積
- 50.22㎡ (15.19坪)
- 築年数
-
1977年
(昭和52)
3月
築49年 - 建ぺい率
- 60%
- 容積率
- 150%
- 土地権利
- 旧法賃借
- 構造および階数
- 木造 地上2階建
- 小学校区
- 西須磨 ( 1000m )
- 中学校区
- 鷹取 ( 2500m )
- 私道負担
- 地目
- 宅地
- 現況
- 空
- 引渡時期
- 即時
- 駐車場
- 無
- 上水道
- 公共
- 下水道
- 公共
- ガス
- 都市ガス
- 都市計画
- 市街化区域
- 用途地域
- 1種低層
- 設備・条件
- 備考
-
■賃貸同時募集中 月額55,000円
■借地期間:2044年12月末
借地料: 10円/月
借地期間: 19年7月
借地期日指定: 2045年12月 - 取引態様
- 仲介


