新築一戸建て 神戸市須磨区行幸町1丁目
2025年7月中旬完成
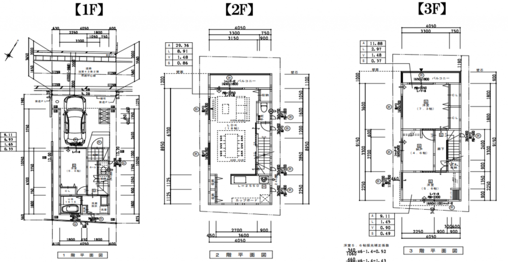
4LDK全室収納•LDK18帖で広々設計!
駐車場スペース1台あり
リビング・ダイニング・キッチン3箇所床暖房あり
大容量宅配ボックス設置(Panasonic製LED表札灯きアーキーフレームFタイプ設置)
スマートロックシステムFamiLock搭載(リビングから玄関ドア開閉可能)
タッチレスハンドシャワー水栓!
洗面所に部屋干しに便利なホスクリーン設置
須磨海浜公園・・・約240m 徒歩4分
メディカルハート(薬局)須磨 ・・・約400m 徒歩6分
ローソン月見山本町店・・・約450m 徒歩7分
マックスバリュ須磨店 ・・・約800m 徒歩11分
浦井医院 ・・・約170m 徒歩2分
清水内科クリニック ・・・約400m 徒歩6分
医療社団法人慈恵会 新須磨病院 ・・・約700m 徒歩10分
【※ボーナス払い無し】
※三菱UFJ銀行/頭金0円、返済期間35年、金利0.945%変動金利変動(2026年04月)の場合
※金利は毎月見直されます。別途、融資手数料、その他諸費用がかかります。
※審査により金利は変わる可能性があります。
物件概要
- 交通
-
山陽線 須磨海浜公園駅 まで 徒歩6分
- 接道状況
- 北西側 私道4m 間口約5.2m
- 土地面積
- 公簿 75.07㎡ (22.70坪)
- 建物面積
- 108.48㎡ (32.81坪)
- 築年数
- 2025年 (令和7) 6月
- 建ぺい率
- 60%
- 容積率
- 160%
- 土地権利
- 所有権
- 構造および階数
- 木造 地上3階建
- 小学校区
- 西須磨 ( 400m )
- 中学校区
- 鷹取 ( 1100m )
- 私道負担
- 有 8.63 ㎡
- 地目
- 宅地
- 現況
- 引渡時期
- 相談
- 駐車場
- 有 普通1台
- 上水道
- 公共
- 下水道
- 公共
- ガス
- 都市ガス
- 都市計画
- 市街化区域
- 用途地域
- 1種住居
- 設備・条件
- 床暖房、システムキッチン、カウンターキッチン、食器洗浄乾燥機、浴室乾燥機、モニタ付インターホン、洗浄便座、追い焚き、トイレ2箇所
- 備考
- 取引態様
- 仲介


